- Woonoppervlakte
- Circa 85 m²
- Inhoud
- Circa 272 m³
- Bouwjaar
- Gebouwd in 1960
- Aantal kamers
- 4 kamers (3 slaapkamers)
Prinses Annalaan 318
2263 XN, Leidschendam (Zuid-Holland)
Open Huis
Zaterdag 13 december van 11:00 tot 12:30
In 2019/2020 volledig GERENOVEERD 4-kamer appartement met drie slaapkamers en een groot balkon (zuidwest).
Binnenkort start onze SMASH Makelaar, Alexandra van der Schot, met de bezichtigingen van dit appartement. Via de button "Vraag bezichtiging aan" wordt u direct uitgenodigd om u aan te melden voor het Open Huis.
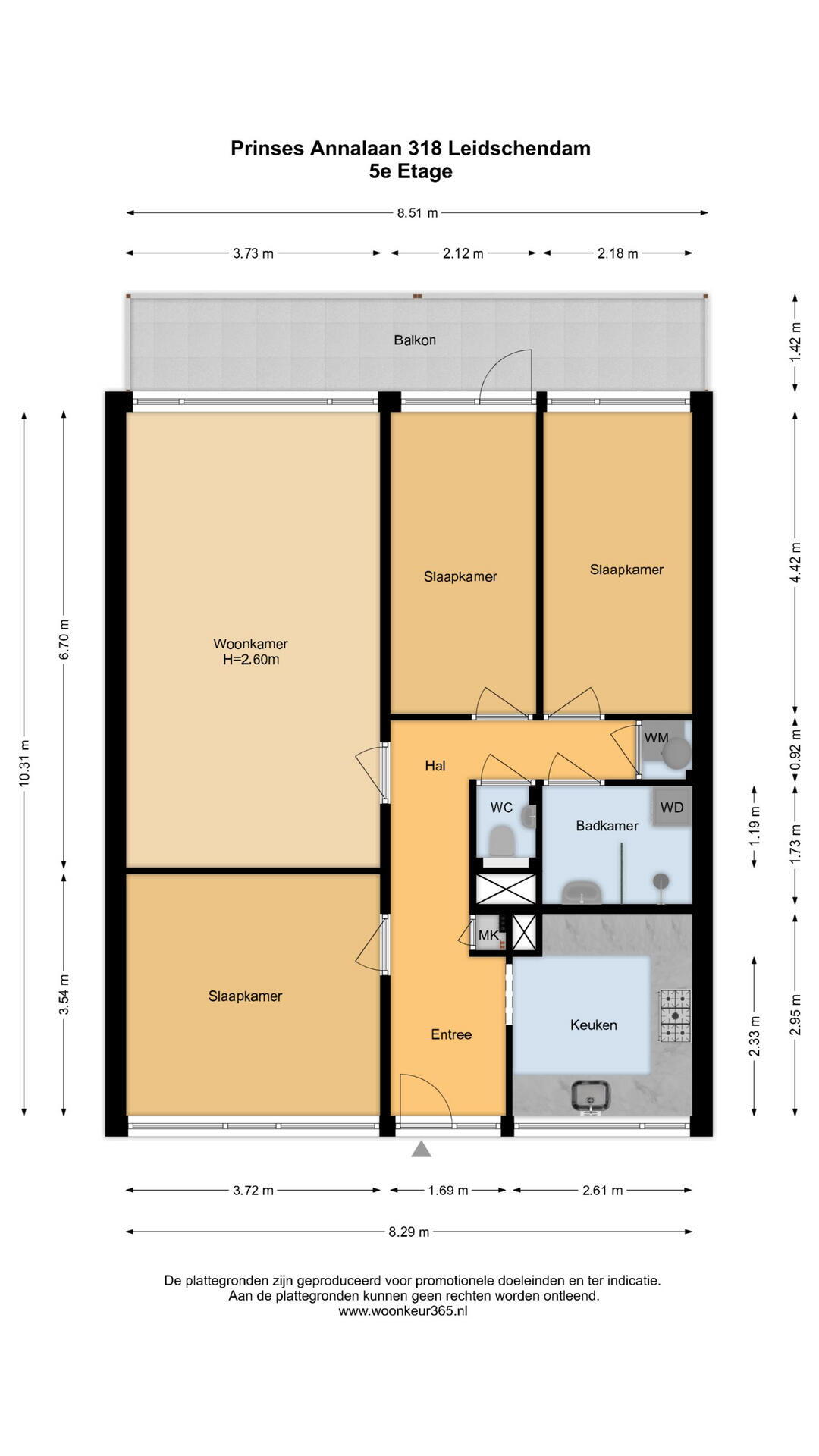
Centrale entree met brievenbussen en bellentableau. Zowel een lift als trap naar de verdiepingen.
Het appartement ligt op de 5e woonlaag;
Entree woning, hal, gang met de grote eenvoudige keuken. rvs aanrechtblad. Losse apparatuur. Wel de ruimte om een mooie L vormig opstelling kwijt te kunnen. De lichte woon- eetkamer is lekker ruim en beschikt over een groot raam met mooi uitzicht. U kijkt hier over het balkon en naar een stuk groen met vrij zicht.
De moderne keuken is voorzien van een granieten aanrechtblad, een koelkast met vriesladen, een gaskookplaat met 5 pitten, een oven, een combi-magnetron met ovenfunctie, vaatwasser en een afzuigkap met koolstoffilters.
Separaat toilet. Lichte badkamer met inloopdouche, wastafelmeubel en plek voor een droger. Naast de badkamer zit een aparte ruimte met aansluiting voor de wasmachine en daar bevindt zich ook de warmwaterboiler. Drie slaapkamers waarvan één aan de voorzijde met grote kastenwand. De andere twee slaapkamers zijn gelegen aan de balkonkant. Het balkon is een echt buiten en ligt op het zuidwesten. Met andere woorden, als het zonnetje schijnt heeft u daar de hele dag plezier van.
Bijzonderheden:
- gehele woning werd in 2019/2020 professioneel gerenoveerd
- meterkast met 8 groepen en twee aardlekschakelaars.
- energielabel C
- servicekosten € 264,53 per maand
- voorschot stookkosten € 76,94 per maand
- warmtemeters per radiatoren thermostaat kranen.
- professionele, gezonde VvE
- verouderings en asbestclausule van toepassing.
- in 2020 zijn alle kozijnen en ramen aan balkonzijde via de VvE vervangen voor kunststof kozijnen met triple glas
Oplevering: februari 2026
Het appartement is gelegen direct nabij het openbaar vervoer zoals bus 46 en tram 6, het zwembad De Fluit, diverse winkelcentra zoals "Mall of The Netherlands" en op 5 minuten fietsen van het gezellige oude centrum bij de Sluisjes.
Note van de huidige eigenaren:
Met ontzettend veel plezier hebben wij hier gewoond en onze kinderen zien opgroeien. Dit huis zit vol fijne herinneringen en gezelligheid. De buren zijn vriendelijk en in de buurt is er bovendien een grote speeltuin die veel plezier biedt voor gezinnen. Nu nemen wij afscheid van ons fijne appartement, en wij hopen dat de volgende bewoners hier net zo gelukkig zullen zijn en volop genieten van dit heerlijke thuis.
Extra:
- waarborgsom of bankgarantie ter grootte van 10% van de koopsom zal door koper gesteld worden op de kwaliteitsrekening van de betreffende notaris.
- koopovereenkomst conform de Vastgoed Ned-koopakte model 2019 Lees de volledige omschrijving
Overdracht
- Vraagprijs
- € 355.000 k.k.
- Status
- Beschikbaar
- Aanvaarding
- In overleg
- Bijdrage VvE
- € 264,53 per maand
Bouw
- Object type
- Galerijflat (appartement)
- Soort bouw
- Bestaande bouw
- Bouwjaar
- 1960
- Toegankelijkheid
- Toegankelijk voor mensen met een beperking
- Soort dak
- Plat dak bedekt met bitumineuze dakbedekking
- Keurmerken
- Energie Prestatie Advies
Oppervlakte en inhoud
- Woonoppervlakte
- 85 m²
- Inhoud
- 272 m³
- Externe bergruimte
- 8 m²
- Gebouwgeb. buitenruimte
- 13 m²
Indeling
- Aantal kamers
- 4 kamers (3 slaapkamers)
- Aantal woonlagen
- 1 woonlaag
- Gelegen op
- 5e woonlaag
- Voorzieningen
- Glasvezelkabel en lift
Energie
- Energielabel
- C
- Energielabel registratie
- 13-11-2025
- Isolatie
- Driedubbel glas en gedeeltelijk dubbel glas
- Verwarming
- Blokverwarming
- Warm water
- Elektrische boiler
Buitenruimte
- Ligging
- Aan rustige weg en in woonwijk
Bergruimte
- Schuur / berging
- Inpandig
Parkeergelegenheid
- Soort parkeergelegenheid
- Op eigen terrein en openbaar parkeren
VvE checklist
- Inschrijving KvK
- Ja
- Jaarlijkse vergadering
- Ja
- Periodieke bijdrage
- Ja (€ 264,53 per maand)
- Reservefonds aanwezig
- Ja
- Onderhoudsplan
- Ja
- Opstalverzekering
- Ja
Energieverbruik in Leidschendam
Energielabel deze woning
Energielabel C
Publicatie energielabel: 13-11-2025
Stroomverbruik per jaar
(Gemiddelde appartement in Leidschendam)
Gasverbruik per jaar
(Gemiddelde appartement in Leidschendam)
* Cijfers zijn afkomstig van het CBS en bedoeld als indicatie en kunnen verschillen voor deze woning
Indicatie hypotheeklasten
Eigen inleg:
Spaargeld / overwaarde
Rente:
Laagste 10-jaars rente
Laagste 10-jaars rente
2,88% - Woonfonds Groen Woonge... - NHG
3,1% - Argenta Groen Hypotheek... - 80%
Laagste 20-jaars rente
3,19% - Centraal Beheer Groen... - NHG
3,47% - Argenta Groen Hypothee... - 80%
Laagste 30-jaars rente
3,34% - Centraal Beheer Groen... - NHG
3,64% - Argenta Groen Hypothee... - 80%
Hypotheek:
Bruto maandlasten: € 0 p/m
Netto maandlasten: € 0 p/m
Hoe berekenen we dit?
Het rentepercentage is gebaseerd op de laagste 10 jaars vaste rente voor één hypotheekdeel. De vermelde rente (2.88% met NHG) is gecontroleerd op 09-12-2025. Deze berekening is gebaseerd op een annuïteitenhypotheek die volledig wordt afgelost, waarbij de maandlasten gedurende de gehele looptijd gelijk blijven. De werkelijke rente en netto maandlasten kunnen variëren, afhankelijk van uw persoonlijke situatie en de hypotheekverstrekker. Raadpleeg een financieel adviseur voor een nauwkeurige berekening en advies. Aan deze berekening kunnen geen rechten worden ontleend; het dient enkel als indicatie.
Documentatie
Kadastrale kaart
Leefomgeving
Prinses-annalaan-318-leidschendam
WOZ waarderapport
BAG uittreksel
Plattegronden PDF
Aanslag-gemeentelijke-belastingen-2025
Aanslag-gem-watersch-belasting-2025
Bsgr-aanslag-printversie1249614082-2025
Energielabel-c-409369688-2263xn-318
Notulen-vergadering-van-eigenaars-14-10-2025
Woz-waardeloket-prinses-annalaan-318-leidschendam
Lijst-van-zaken
Vragenlijst-verkoop-appartementsrecht-inclusief-vve-checklist-2023
Makelaar Leidschendam
Bezoek onze website
Bezichtiging
Bod uitbrengen
Waardebepaling
Zoekopdracht
Alles downloaden
Zonnegrenzen bekijken
Inwoners in Leidschendam
Cijfers voor postcodegebied 2263
- Totaal aantal inwoners
- 5940 inwoners
- Mannen
- 47%
- Vrouwen
- 53%
Inwoners in Leidschendam
Cijfers voor postcodegebied 2263
- tot 15 jaar
- 17%
- 15 tot 25 jaar
- 12%
- 25 tot 35 jaar
- 24%
- 45 tot 65 jaar
- 24%
- 65 en ouder
- 23%
Huishoudens in Leidschendam
Cijfers voor postcodegebied 2263
- Eenpersoons zonder kinderen
- 44%
- Meerpersoons zonder kinderen
- 22%
- Huishoudens zonder kinderen
- 66%
Huishoudens in Leidschendam
Cijfers voor postcodegebied 2263
- Huishoudens met één kind
- 15%
- Huishoudens met meerdere kinderen
- 20%
- Huishoudens met kinderen
- 35%
Woningen in Leidschendam
Cijfers voor postcodegebied 2263
- Woningen voor 1945
- 1%
- Woningen tussen 1945 en 1965
- 21%
- Woningen tussen 1965 en 1975
- 67%
- Woningen tussen 1975 en 1985
- 3%
- Woningen tussen 1985 en 1995
- 1%
Woningen in Leidschendam
Cijfers voor postcodegebied 2263
- Woningen tussen 1995 en 2005
- 1%
- Woningen tussen 2005 en 2015
- 9%
- Woningen na 2015
- 1%
- Huurwoningen
- 60%
- Koopwoningen
- 40%
Overige in Leidschendam
Cijfers voor postcodegebied 2263
- Gemiddelde WOZ waarde
- € 184.000,-
- Personen onder de 65 met uitkering
- 14%
Overige in Leidschendam
Cijfers voor postcodegebied 2263
- Adressen per km²
- 2443
- Stedelijkheid (schaal 1 op 5)
- 80%
Indien u vragen heeft of u wilt een bezichtiging inplannen, dan kunt u gebruik maken van het formulier hiernaast. Er zal daarna op korte termijn contact met u worden opgenomen.
Rietvoornvijver 12
2492 MP, Den Haag
070 - 4445 551 info@smashmakelaars.nl www.smashmakelaars.nlTulpentuin 26
2272 XK, Voorburg
Rietvoornvijver 12
2492 MP, Den Haag
Contact opnemen
Over SMASH Makelaars
SMASH Makelaars is een jong en dynamisch makelaarskantoor met uitgebreide ervaring in aankoop en verkoop. Opgericht in 2020, streven wij ernaar om ons te onderscheiden van traditionele makelaarskantoren. Na ervaring opgedaan te hebben bij een ander kantoor in de regio, hebben we besloten onze krachten te bundelen en ons te onderscheiden door onze unieke werkwijze. Onze kernwaarden zijn betrouwbaarheid, betrokkenheid en toewijding. We bieden één vast contactpersoon en zijn altijd bereikbaar, terwijl we deskundig, betrouwbaar en gedegen advies geven dat aansluit bij uw persoonlijke wensen.
SMASH Makelaars: persoonlijke relaties en samenwerking
Het kopen of verkopen van een huis gaat verder dan alleen zakelijke aspecten. Het draait om emoties en het gevoel van 'thuiskomen'. Bij SMASH Makelaars helpen we u graag met meedenken, meekijken, vooruitdenken en vooral samen het beste resultaat bereiken!
Bij SMASH Makelaars bent u geen nummer, maar bouwt u een persoonlijke relatie op. Geen assistenten of junior makelaars: wanneer u kiest voor SMASH Makelaars, is uw huis gegarandeerd in handen van Sander of Alexandra zelf! Elke woning is voor ons een nieuwe uitdaging, of het nu gaat om verkoop, aankoop of waardebepaling. Dit leidt niet alleen tot de leukste woningen, maar ook tot de leukste opdrachtgevers.
Wilt u een woning verkopen in de omgeving van Leidschendam-Voorburg of Den Haag? Neem direct contact met ons op!
Nieuwste reviews
-
Willem Timmerman
We hebben via Smash Makelaar met Sander als aankoopmakelaar onze woning in Voorburg gekocht, en we zijn écht ontzettend tevreden. De prijs-k...
-
Koen Vandongen
Smash was de verkopend makelaar van onze nieuwe woning in Pijnacker. We hebben veel met Sander geschakeld en hij heeft ons altijd op een sne...
-
Luna Marchand
Sander is onze aankoopmakelaar geweest bij de koop van onze eerste woning. Hij is heel eerlijk en zal niet proberen je zo snel mogelijk aan...